Z przyjemnością prezentuję Państwu ofertę zakupu mieszkania zlokalizowanego w zrewitalizowanej kamienicy przy ul. Obrońców Bydgoszczy 14 w Bydgoszczy.
To propozycja dla osób, które szukają nowego standardu w śródmiejskim adresie - bez kompromisów technicznych i bez masowego charakteru nowych osiedli.
BUDYNEK
Nieruchomość znajduje się w kamienicy, która przeszła kompleksową rewitalizację, obejmującą m.in.:
- wymianę instalacji wodno-kanalizacyjnej, elektrycznej i grzewczej,
- nową stolarkę drzwiową,
- remont klatek schodowych,
- odświeżenie elewacji,
- remont dachu.
Efektem jest budynek o zachowanym charakterze historycznym, dostosowany do współczesnych standardów użytkowych i eksploatacyjnych.
MIESZKANIE PO GENERALNYM REMONCIE:
- nowa elektryka i wod-kan,
- gładzie na ścianach,
- wyposażona kuchnia w zabudowie stolarskiej (lodówka, piekarnik, płyta indukcyjna, okap, zlewozmywak, zmywarka 45cm),
- panele i terakota na poziomowanej podłodze,
- nowa łazienka (bez pralki).
Lokal znajduje się na drugim piętrze i oferowany jest w stanie pod klucz. Istnieje możliwość zakupu mieszkania w stanie deweloperskim, co daje przyszłemu właścicielowi pełną swobodę aranżacyjną.
Mieszkanie jest jasne, ustawne i funkcjonalne, a jego układ pozwala na komfortowe zaprojektowanie przestrzeni zarówno do zamieszkania, jak i pod wynajem.
Ekspozycja: południowa
Charakterystyka: spokojne położenie, dobre doświetlenie, czytelny układ pomieszczeń.
To przestrzeń bez cudzych kompromisów — projektujesz dokładnie tak, jak chcesz.
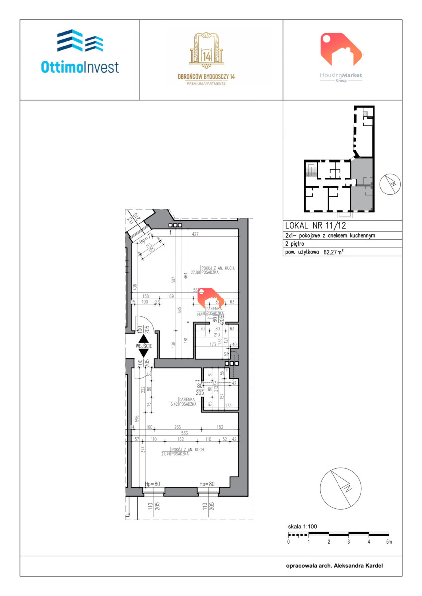
UKŁAD POMIESZCZEŃ
Na metraż mieszkania -składa się:
- 2 pokoje z aneksami 27,88 i 27,49m2,
- 2 łazienki 3,42 i 3,48m2.
DLA KOGO?
- dla singla lub pary szukających mieszkania w śródmieściu,
- dla osób pracujących w trybie miejskim / hybrydowym,
- dla klienta inwestycyjnego z myślą o najmie krótko- lub długoterminowym,
- dla kupujących, którzy cenią lokalizację, przewidywalność i długoterminową wartość.
LOKALIZACJA
Ulica Obrońców Bydgoszczy to śródmiejski adres, który działa w codziennym życiu:
- szybkie połączenia komunikacyjne,
- bliskość centrum bez jego uciążliwości,
- pełna infrastruktura w zasięgu kilku minut pieszo.
W pobliżu znajdują się sklepy, punkty usługowe, komunikacja miejska, tereny rekreacyjne oraz wszystko, co potrzebne na co dzień — bez konieczności dojazdów.
INFORMACJE DODATKOWE
- możliwość zakupu w stanie deweloperskim (mieszkania wykańczamy w kolejności zakupu),
- dysponuję mieszkaniem pokazowym pod innym adresem!
- ogrzewanie miejskie,
- forma własności: pełna własność z KW,
- czynsz 872zł,
- dostępne inne lokale w tym samym budynku,
- dostępne miejsca parkingowe na terenie w cenie 25 000zł,
- dostępne piwnice w cenie 6000zł/szt.,
- oddanie budynku do końca kwietnia 2026!
- cena do negocjacji.
W swojej ofercie posiadamy również inne mieszkania w tej inwestycji oraz nieruchomości o podobnym charakterze i lokalizacji.
Chętnie pomożemy dobrać lokal najlepiej dopasowany do Państwa potrzeb lub celu inwestycyjnego.
Nie odkładaj decyzji na później.
Zadzwoń i umów się na spotkanie.
Artur Kaczmarek
? 516 534 534
Dwupak pod klucz, Obrońców Bydgoszczy
lokalizacja: Bydgoszcz, Obrońców Bydgoszczy
865 533,00 PLN
13 899,68 PLN
Dane szczegółowe
- Typ transakcji: sprzedaż
- Typ nieruchomości: Mieszkanie
- Lokalizacja: Bydgoszcz Centrum, Obrońców Bydgoszczy
- Powierzchnia:62,27 m2
- Liczba pokoi: 2
- Rok budowy: 1900
- Piętro: 2 z 3
- Numer oferty: 205154
- Cena: 865 533,00 PLN
- Cena za m2: 13 899,68 PLN
Opis nieruchomości
Kontakt do opiekuna:
Housing Market Sp. z o.o.